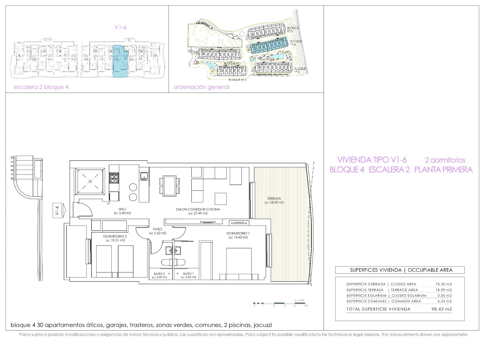
Overview
- Apartment
- 2
- 2
- 73 m²
Description
NEW BUILD RESIDENTIAL AT PLAYA FLAMENCA!!! From a well established developer we are proud to offer this just released new residential just 500 m away from sea at popular Playa Flamenca (Orihuela Costa) . Residential with nice comunal pools, jacuzzis and nice common gardens. All services like supermarkets, bars and restaurants, etc are within walking distance in a very central spot at Orihuela Costa. Wide variety of types to choose from: 2, 3 or 4 bedroom apartments. Low floors with private gardens or top floors with private solariums. All houses come with a parking space and a storage room included in the price. Zenia Boulevard shopping center 1 km away and several golf courses like Villamartin, Campoamor within 5 km from this residential will make an ideal location for your holidays or your permanent living. 982
Address
Open on Google Maps-
City: Orihuela Costa
-
State/county: Alicante
-
Country: Spain
Mortgage Calculator
-
Down Payment
-
Loan Amount
-
Monthly Mortgage Payment
-
Property Tax
-
Home Insurance
-
PMI
-
Monthly HOA Fees


















